

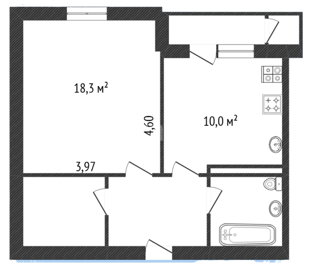
Планировка
Карта














1-комн. квартира, 41.7м², 16/17 этаж
Своя ставка от 11.9%
Ярославль, ул. Суздальское шоссе, 52
На карте
Хотите скидку?
Предложите свою стоимость!
Описание
Изменено: 06.02.26
Предлагаю вам ШИКАРНУЮ однокомнатную квартиру в сердце Фрунзенского района на Суздальском шоссе!
Дом кирпичный со своей газовой котельной - низкие коммунальные платежи обеспечены!
В квартире выполнен косметический ремонт, что позволит заехать и жить без лишних вложений!
Бонус к квартире - шикарный вид с лоджии, который не оставит вас равнодушными!
Остались вопросы или желаете записаться на просмотр? ЗВОНИТЕ!
Характеристики
- Код объекта11705586
- Общая площадь41.7 м²
- Площадь кухни10 м²
- РемонтКосметический ремонт
- Год постройки2016
- Этаж/Этажность16 из 17
- СтеныМонолитные
Что-то не так с объявлением?
Сообщите нам, и мы разберёмся в проблеме
- Главная
- Квартиры
- Однокомнатные квартиры
- Фрунзенский
- Суздальское шоссе
- Код объекта 11705586
